House/Villa - Taroudant | House in TAROUDANT

8 Bedroom House in Taroudannt, TAROUDANT
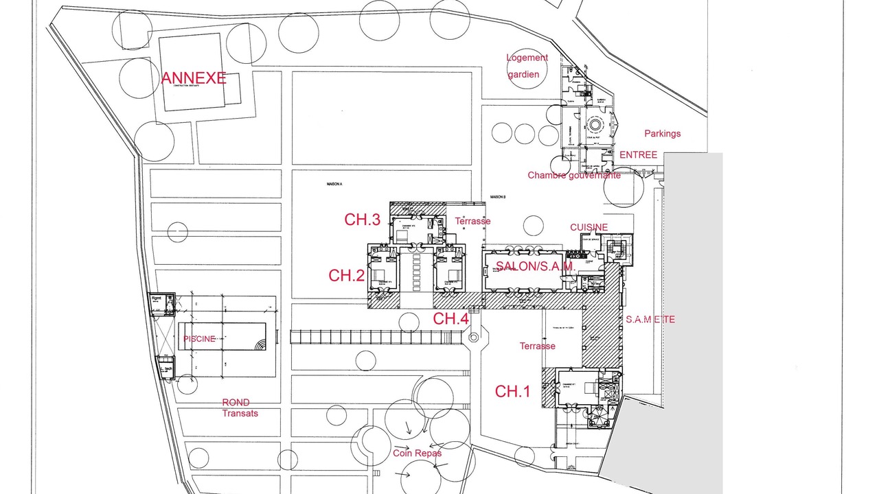
(Text automatically translated) Large new villa, comfortable, Staff included in an olive grove is about 1500m TAROUDANT traditional and authentic Moroccan southern city, surrounded by magnificent walls. Large walled garden with trees and flowers, ensuring tranquility. Pool heating (participation), The main house has four comfortable bedrooms (sleeps eight), each with a bathroom, toilet, air conditioning, fireplace. A second house, in the garden, also has four bedrooms (sleeps September), simple but clean and a kitchenette and a bathroom and toilet. This home is currently available for a fee of ? 250 per week traditional Hammam, 2 TVs, ping-pong. Many terraces. Staff: a housekeeper, a cook on request, custodian, at your disposal to make your stay rêve.La Moroccan cuisine will delight you!
This 8 Bedrooms House provides accommodation with TV, View, Private Pool, for your convenience. This House features many amenities for guests who want to stay for a few days, a weekend or probably a longer vacation with family, friends or group. The rental House has 8 Bedrooms and 5 Bathrooms to make you feel right at home.
Check to see if this House has the amenities you need and a location that makes this a great choice to stay in Taroudannt. Enjoy your stay in Taroudannt at this House.
Amenities
Facility Overview
-
Air conditioning
-
Heating
-
Toilet paper
-
Towels provided
-
Shampoo
-
5 bathrooms
-
Hair dryer
-
Soap
-
Shower
-
Bed sheets provided
-
8 bedrooms
-
Dining table
-
Dining room
-
Fireplace
-
Living room
-
Toaster
-
Cookware/dishes/utensils
-
Oven
-
Refrigerator
-
Dishwasher
-
Electric kettle
-
Spices
-
Microwave
-
Stovetop
-
Washing machine
-
Laundry facilities
-
Near laundromat
-
Beach sun loungers
-
Beach towels
-
Onsite parking
-
Car recommended
-
No pets allowed
-
If you have requests for specific accessibility needs, please contact the property using the information on the reservation confirmation received after booking.
-
Designated smoking areas
-
Note from host: A l'extérieur
-
No elevators
-
Wheelchair-accessible pool
-
Hiking nearby
-
Hiking/biking trails nearby
-
Horse riding nearby
-
Fitness facilities nearby
-
Golf nearby
-
Golfing on site
-
Cycling nearby
-
Tennis on site
-
Hunting nearby
-
Ecotours nearby
-
Stereo
-
Games
-
Music library
-
Books
-
Smart TV with cable/satellite service
-
Video library
-
Table tennis
-
DVD player
-
Unit size: 3229 sq ft (300 sq m)
-
At least 80% lighting from LEDs
-
English
-
French
-
In the mountains
-
Near outlet shopping
-
Near a hospital
-
In a rural location
-
Office
-
Computer monitor
-
Desk
-
Children's dinnerware
-
Travel crib
-
Highchair
-
Playground
-
Limited housekeeping
-
Concierge services
-
Change of towels (on request)
-
Chef
-
Iron/ironing board
-
Safe
-
Change of bedsheets (on request)
-
Free WiFi
-
Fenced yard
-
Outdoor furniture
-
Patio
-
Garden
-
Carbon monoxide detector not reported (host has not indicated whether there is a carbon monoxide detector on the property; consider bringing a portable detector)
-
Smoke detector not reported (host has not indicated whether there is a smoke detector on the property)
-
Private pool
-
Massages
-
Sauna
-
Indoor pool
-
Fence around the pool
-
Heated pool
Policies
Extra-person charges may apply and vary depending on property policy government-issued photo identification and a credit card, debit card, or cash deposit may be required at check-in for incidental charges host has not indicated whether there is a carbon monoxide detector on the property; consider bringing a portable detector with you on the trip host has not indicated whether there is a smoke detector on the property onsite parties or group events are strictly prohibited special requests are subject to availability upon check-in and may incur additional charges; special requests cannot be guaranteed this property is managed through our partner, vrbo. you will receive an email from vrbo with a link to a vrbo account, where you can change or cancel your reservation